Beschrijving

Zorg dat je Ready bent voor een unieke kans. Nieuwbouwwoningen zijn erg schaars in de regio en deze 2-onder-1 kapper uit 2023 in Groede staat nu te koop! De eigenaren hebben ervoor gekozen om op diverse punten af te wijken van de standaardoplevering bij nieuwbouw. “Standaard” zijn deze woningen al uitermate uitgebreid, energiezuinig en gasloos, maar hier is er aanvullend gekozen voor een luxere afwerking, zichtbaar bij de keuken, het sanitair, de PVC-visgraat-vloer, de binnendeur, het dakraam, het stucwerk, de extra zonnepanelen en de grotere boiler. Nog maar recent zijn de voor- en achtertuin volledig afgewerkt. Een nieuwere en luxere 2-onder-1 kap woning ga je in deze regio echt niet vinden. Neem snel contact met ons op voor een afspraak! 

Waarom Groede? 
Groede heeft een kleine 1.000 inwoners en kent sfeervolle straatjes en een gezellige monumentale markt rondom de Grote Kerk met diverse cafés en restaurants. Absolute aanraders zijn onder andere ‘Eetcafé de Drie Koningen’ met brouwerij ‘Dutch Bargain’, ‘Etablissement 1880’ of ‘koffiebar de Fonteyn’ en ervaar de nog vele andere restaurants en cafés die zeker niet voor de rest moeten onderdoen. In de omgeving zijn zelfs diverse restaurants te vinden op Michelin niveau. Ook sta je met de fiets zo aan het strand voor een leuk tochtje, een hapje of een drankje bij bijvoorbeeld ‘Puur’ of ‘Beachhouse 25’ of gewoon om lekker te bakken in de zon. 

Ligging:
Groede is gelegen op 3 kilometer van de uitgestrekte West-Zeeuwse-Vlaamse kust. Voor de dagelijkse boodschappen is Breskens op 4 kilometer of Oostburg op 6 kilometer gelegen. Vanuit Breskens is de ferry naar Vlissingen te nemen en vanaf daar heb je een uitstekende treinverbinding naar de randstad. Het toeristische Sluis vind je op 12 kilometer en de cultuursteden Brugge en Gent zijn binnen het uur aan te rijden.

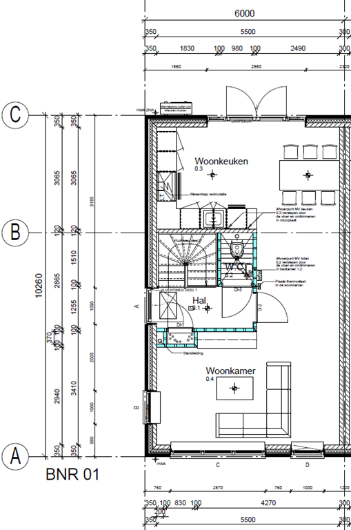
Indeling

Een groot pluspunt aan deze woning is dat je een vrij uitzicht op de straat hebt. In de straat is voldoende parkeergelegenheid voorzien, waardoor je altijd de auto kan parkeren. De auto parkeer je tevens makkelijk op de eigen oprit. Aan de zijkant wordt middels de antracietgrijze kunststof voordeur de hal betreden met de meterkast, het toilet en de vurenhouten trap met op maat gemaakte trapkast, waar ook een voorraadkast in te vinden is. In de hal heb je alle ruimte voor een garderobe. Vervolgens stap je de woonkamer binnen via de glazen binnendeur met aan de voorkant van de woning de woonkamer met vele raampartijen en aan de achterkant de keuken en eetkamer met openslaande tuindeuren. De begane grond- en verdiepingsvloeren zijn zandcementvloeren van 70 mm dik. Op de begane grond is deze vloer prachtig afgewerkt met een fraaie PVC-visgraat-vloer. De vloeren zijn op beide verdiepingen voorzien van vraaggestuurde vloerverwarming en vloerkoeling en de wanden zijn strak gestuct. Tenslotte is er een uitgebreide luxe keuken in gegaan aan de achterzijde van de woning. Deze keuken is voorzien van een fraai en uitgestrekt blad, een bar, een klimaatkast, een inductiekookplaat met Bora-afzuiging, een vaatwasser, een Quooker en een stoomoven. Daarnaast is er ruimte gemaakt om een losse koelkast te plaatsen.

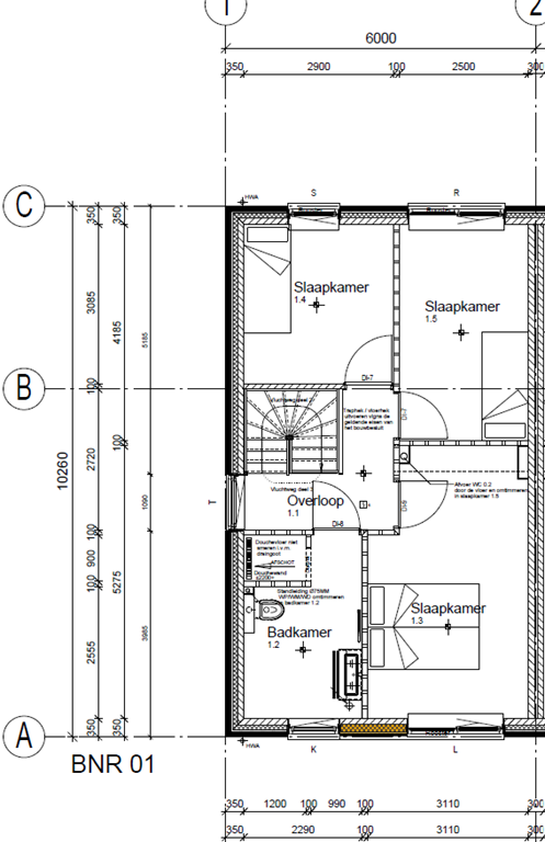
Eerste verdieping

De ruime overloop biedt toegang tot de drie volwaardige slaapkamers, welke allen verrassend ruim zijn. De masterbedroom heeft alle ruimte voor een kingsize tweepersoonsbed en een grote kledingkast. De andere twee slaapkamers zijn leuke kinderkamers met alle ruimte voor een één- of tweepersoonsbed, kledingkast en bureau. Eén van de kamers is nu in gebruik als walk-in-closet, wat een goed beeld geeft van hoe je deze ruimte ook in kunt zetten. Verder is bij de badkamer ook niet op ruimte én luxe bespaard. Deze badkamer is echt met stijl vormgegeven, waarbij de fraaie tegels, de gouden kranen en de inbouwspots de eyecatcher zijn. Het is tevens voorzien van een stijlvol ligbad, een ruime inloopdouche, een toilet en een fraaie dubbele wastafel met designspiegel.

Tweede verdieping

De vaste trap draait verder naar de tweede verdieping: een hoge open zolder welke naar wens gebruikt kan worden. Het is een ideale wasruimte, fitnesskamer of zelfs een extra slaapkamer. Het extra dakraam zorgt hier voor voldoende lichtinval. Tevens biedt het plaats voor de technische ruimte met de warmtepomp met een grote 300 liter boiler, WTW ventilatiesysteem, omvormer voor de zonnepanelen en wasmachine / droger. Deze verdieping is niet van verwarming voorzien.

Tuin

De voortuin is nog maar recent (in samenwerking met de buren) afgewerkt. Het is onderhoudsvriendelijk en een genot voor het oog wanneer je thuis komt. De achtertuin is tevens fraai afgewerkt met een nette betonschutting rondom en een fijn terras aan de woning. Achterin is nog een tuinhuis te vinden voor de opslag van je tuinmaterialen.

Bijzonderheden

-	De woning is in 2023 gebouwd volgens de zeer zuinige BENG normering met:
  o	Volledig gasloos met een modern lucht-water warmtepompsysteem;
  o	Een gebalanceerd ventilatiesysteem met warmteterugwinning (WTW);
  o	Negen zonnepanelen;
  o	Hoogwaardige isolatie.;
  o	Kunststof kozijnen met HR++ beglazing.
-	Luxe keuken en sanitair. 
-	Hoogwaardige afwerking. 
-	Inbouwspots in wc- en badkamer.
-	Voorzien van vloerverwarming en -koeling. 
-	Ruim met 131 m² aan woonoppervlakte. 
-   Het energielabel is in aanvraag. Dit zal naar verwachting een energielabel A met een aantal plussen worden. 

Be Ready om zonder zorgen in een luxe nieuwbouwwoning te wonen? Pak snel de telefoon en neem contact op met Ready Vastgoed om een afspraak te maken!

Via de rode knop ‘breng een bod uit’ op de website van Ready Vastgoed komt u terecht in ons eerlijk bieden platform. Hier kunt u eerst alle aanvullende documentatie inzien en heeft u interesse, dan kunt u ook hier eenvoudig en op een eerlijke manier een bod uitbrengen.

Kenmerken