Beschrijving

Wat een waanzinnige kans is dit in Zuidzande! Eigenaar worden van de luxe verbouwde kerk met als doel: Hemels wonen, detailhandel en/of horeca-activiteiten. De gemengde bestemming maakt dit mogelijk, waardoor de mogelijkheden zeer uitgebreid zijn, tot zelfs het uitbaten van een hotel! 

Stel je voor dat je dit pand volledig kan ombouwen tot je eigen woning, niemand in je omgeving zal royaler kunnen wonen met ruim 500 m² aan gebruiksoppervlakte! Wil je niet te veel aanpassen en droom je al heel je leven van je eigen horecazaak, dan is deze locatie ook perfect voor jou! De kerk zelf is al volledig in gebruik als restaurant, waarbij je de volledige inventaris kan overnemen. De aanbouw is in gebruik als woning, waardoor je gewoon naast je droom kan wonen of bijvoorbeeld werknemers kan onderbrengen. 

Het pittoreske ‘Zuidzande’ heeft een fijne ligging in de regio tussen de Zeeuwse polders en op fietsafstand van de Zeeuwse kust. Zuidzande is centraal gelegen in Zeeuws-Vlaanderen, waardoor de West-Zeeuws-Vlaamse kust (met een 20-tal strandpaviljoens) binnen 5 tot 10 minuten aan te rijden is. Ook is de omgeving toeristisch, waardoor je een uitgebreid publiek hebt voor je restaurant. De toeristische wereldsteden Brugge en Gent zijn op ongeveer 30 tot 45 minuten rijden te vinden. Genoeg mogelijkheden om cultuur op te snuiven en jezelf te verwennen met een unieke culinaire ervaring.

Indeling

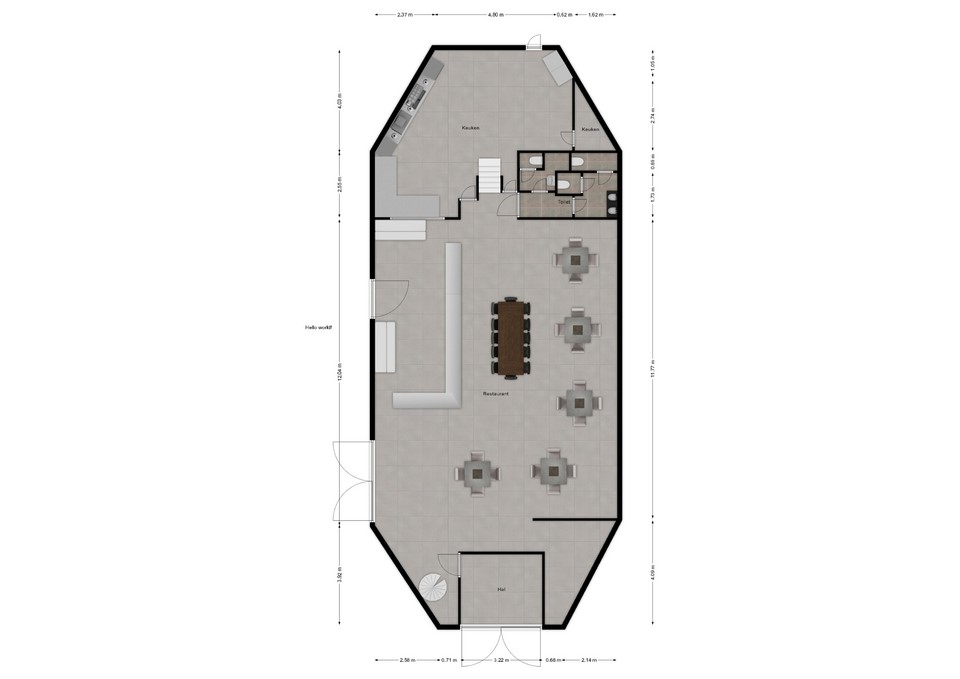
De kerk:
Middels de poort wordt het hoofdgebouw betreden. De inkom bereidt je voor op een grootse entree in de kerk. Hang de jassen op in de garderobe om vervolgens je plekje te veroveren in de kerk. Met 50 couverts (plaatsen) op de begane grond kan het hier snel gezellig worden. De inrichting van het pand is in ieder geval uitermate sfeervol en de houtkachel werkt hier ook aan mee. In deze ruimte is uiteraard ook de volledig uitgeruste bar voorzien. Voor de gasten is zijn er uitgebreide sanitair voorzieningen met bij de heren een toilet, twee urinoirs en een wastafel en bij de dames een invalidentoilet en een apart toilet. We mogen zeker het belangrijkste van het restaurant niet vergeten: de keuken. Met een handige doorloop is deze langs de ene zijde te betreden en langs de andere te verlaten. Ook de keuken is volledig ingericht, zodat de uitbating direct kan starten na aankoop. 

De trap in de hoofdzaal biedt toegang tot de verdieping met open vide. Hier zijn eventueel nog veel extra plaatsen te creëren en deze ruimte leent zich eventueel ook perfect voor feesten. Daarvoor is hier ook een tweede bar voorzien. Tenslotte treffen we nog een trap naar de tweede verdieping om op de zolder van de kerk uit te komen. Deze dient als opslag, hier is een CV-ketel geplaatst en hier kan tevens de kerkklok bedient worden. 

De woning: 
De woning heeft een oppervlakte van 107 m² en is voorzien van drie slaapkamers. De hal van het aangebouwde woongedeelte kan middels de eigen voordeur en via de bar betreden worden. Deze hal biedt tevens weer toegang tot de achtertuin en is voorzien van een berging. We passeren het toilet en de wasruimte om in de woonkamer te komen. Deze woonkamer wordt tevens bijverwarmd met de houtkachel en is voorzien van een open keuken. Alle ruimte om hier een gezellige zit- en eethoek te maken. De openslaande tuindeuren verbinden je met de achtertuin. Verder is het nog voorzien van drie ruime slaapkamers en een vernieuwde badkamer met douche en wastafel.

Tuin

Aan de voorzijde is een royaal terras aangelegd voor de gasten. Hier kan je in de zomer heerlijk buiten zitten in de middag- en avondzon en overdekt zitten in de ‘muziektent’. 

Aan de achterzijde van de woning is de achtertuin gelegen op het zuidoosten voor de ochtend- en middagzon. Dit is een groot stuk privétuin om je ook af te kunnen zonderen van het leven aan de voorzijde. Het tuinhuis biedt opslagplek en de tuin is groot genoeg voor een heerlijk terras in de zon.

Bijzonderheden

-	Gemengde bestemming maakt mogelijk: Uiteraard wonen, detailhandel en horeca-activiteiten. Denk bij horeca aan een restaurant, snackbar of een broodjeszaak, maar ook is het uitbaten van zalenverhuur of zelfs een hotel mogelijk!
-	Volledige inventaris (keuken, barren, tafels, stoelen, etc.) is ter overname.
-	Goede staat van onderhoud. 
-	Monumentaal pand. 
-	Drie CV-ketels uit 2006, 2010 en 2014. 
-	Houten, kunststof en betonnen kozijnen met grotendeels dubbel glas.
-	Ontharder.
-	Mechanische afzuiging. 
-	Vetput aanwezig. 

Ben je nieuwsgierig geworden en wil je meer weten over de woning. Neem dan contact op met Ready Vastgoed of plan een bezoek met ons in!

Via de rode knop ‘breng een bod uit’ op de website van Ready Vastgoed komt u terecht in ons eerlijk bieden platform. Hier kunt u eerst alle aanvullende documentatie inzien en heeft u interesse, dan kunt u ook hier eenvoudig en op een eerlijke manier een bod uitbrengen.

Kenmerken